***Tolles Hinterlieger-Grundstück für ein Einfamilienhaus***

83071 Stephanskirchen/ Schloßberg, Wohngrundstück zum Kauf

Kontaktdaten

Lisa Werner, IMMOBILIEN WERNER OHG

Direktanfrage

* Pflichtangaben
 SSL-verschlüsselt

Objektdaten

  • Objekt-ID
    3628
  • Objekttypen
    Grundstück, Wohngrundstück
  • Adresse
    83071 Stephanskirchen/ Schloßberg
  • Grund­stück ca.
    436 m²
  • Käufer­provision
    3,57 % inkl. MwSt.
  • Kaufpreis
    549.000 EUR

Objekt­beschreibung

Beschreibung

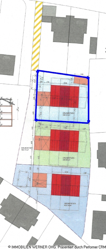
Verkauft wird ein Hinterliegergrundstück mit ca. 436 m².
Auf dem Grundstück kann ein Einfamilienhaus mit einer Größe von 9x12 Metern samt Doppelgarage und Stellplatz errrichtet werden.
Dieses und zwei weitere Hinterliegergrundstücke entstehen durch die Teilung eines größeren Grundstücks in drei Parzellen und eine Gemeinschaftsfläche.
Aktuell befindet sich noch ein Altbestand auf dem Grundstück.
Die Zuwegung erfolgt über ein im Grundbuch gesichertes Geh-, Fahr- und Leitungsrecht über das Vorderliegergrundstück.
Die eigene Erschließung mit Strom, Wasser und Abwasser etc. ist vom Käufer bzw. den Käufern der drei Parzellen herzustellen.

Zum Verkauf steht weiter noch die südliche Parzelle für ebenfalls ein Einfamilienhaus 9x12 Meter mit einer Einzelgarage und einen Carport:
die südliche Parzelle mit ca. 603 m² für 699.000 Euro

Sonstiges

Gerne stehen wir Ihnen für sämtliche Fragen sowie auch für einen gemeinsamen Besichtigungstermin zur Verfügung!
Rufen Sie uns gerne an unter 08031–81767. Wir freuen uns auf Ihren Anruf!

Bitte beachten Sie, dass wir nur Anfragen mit vollständigen Kontaktdaten, d.h. auch Telefonnummer, wirklich bearbeiten können!

Die Käuferprovision beträgt 3,57 % inkl. MwSt. vom beurkundeten Kaufpreis. Es besteht ein Maklervertrag mit dem Verkäufer in gleicher Höhe.
Alle Angaben wurden nach bestem Wissen und den uns von den Verkäufern zur Verfügung gestellten Unterlagen gemacht.
Für deren Richtigkeit und Vollständigkeit übernehmen wir keine Haftung.
Irrtum und Zwischenverkauf vorbehalten.
Dieses Exposé ist eine Vorinformation, als Rechtsgrundlage gilt allein der abgeschlossene Vertrag.

Lage

Stephanskirchen liegt idyllisch am nördlichen Ende des Inntals, nur wenige Kilometer östlich von Rosenheim.
Das Gemeindegebiet erstreckt sich vom Inn im Westen bis zum Simssee im Osten. Als Teil der Simsseeregion zählt Stephanskirchen mit seinen 48 Ortsteilen zum beliebten Wohn- und Naherholungsgebiet. Ob Baden, Wandern oder Radeln, der Simssee und seine Umgebung mit Hügeln, Wäldern und Wiesen halten für jeden etwas bereit.
Auch die Chiemgauer Alpen die Tiroler Berge, München oder Salzburg sind über die A8 in kurzer Zeit erreicht.
Zum Rosenheimer Bahnhof gelangt man mit dem Bus oder auch mit dem Fahrrad in ca. 10 Minuten. Die gute Anbindung an Rosenheim und die Autobahn macht den Ort auch ideal für Pendler, die die Ruhe eines ländlichen Rückzugs schätzen, ohne auf städtische Annehmlichkeiten verzichten zu wollen.
Für die Kinder stehen 5 Kindertagesstätten, 2 Grundschulen und eine Mittelschule mit Mittagsbetreuung im Gemeindebereich zur Verfügung. Die weiterführenden Schulen befinden sich in Rosenheim.
Vor Ort am Schloßberg gibt es Bäckereien, Metzgereien, Supermärkte und Wochenmärkte, die den täglichen Bedarf abdecken. Auch die medizinische Versorgung mit Ärzten und Apotheken ist gesichert. Kleinere Läden, Post- und Bankfilialen ergänzen das Angebot.
Abwechslung bieten die zahlreichen Vereine, Sport- und Kulturangebote.
Lokale Sportvereine (z. B. Fußball, Tennis, Fitness) bieten regelmäßige Trainings- und Spielmöglichkeiten. Vereinshäuser und Sportanlagen befinden sich teils direkt im Ort oder in der Nachbarschaft. Sportevents, Gemeinschaftsabende, Feste und Ausstellungen tragen zu einer lebendigen Dorfgemeinschaft bei und bereichern das Gemeinschaftsleben.

Die dargestellte Position der Immobilie ist nur eine ungefähre Angabe.

Immobiliendaten-Import und Darstellung für WordPress: WP-ImmoMakler